CKA R C H I T E C T U R E
D e s i g n - P l a n n i n g - S u r v e y - M a n a g e m e n t

Ashleigh House
John F Kennedy Road, Dublin 12
Republic of Ireland

E-mail: Contact@ckarchitecture.ie

Tel: 00(353)16208135









DESIGN SERVICES:

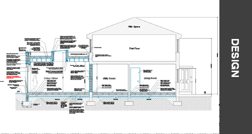
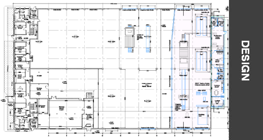
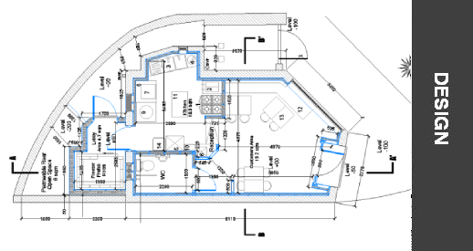
For residential, commercial, leisure, educative or industrial sectors, we produce design work related to different types of developments in Ireland and abroad. You can access more information about our realised projects by accessing the projects pages on this website. Our design philosophy is focused on sustainability, light, space, materials and technologies. Our clients choose the style and the influences; we realise the design.

We are involved with large and small design works. We can produce 2D and 3D computer design. We also realise 3D models using wood, plastic, paper and other materials. We provide design work for presentation purposes, for planning applications, for construction, for fire safety certificates and for disability access certificates.





 










 

>

This web site is subject to copyright and must not be copied or reproduced without consent of © 2023 CK Architecture previously trading as Christophe Krief Architect. All rights reserved.

Website PDF disclaimer